Loft Love
Renovation of a loft in a former piano factory
Renovation of a loft in a former piano factory
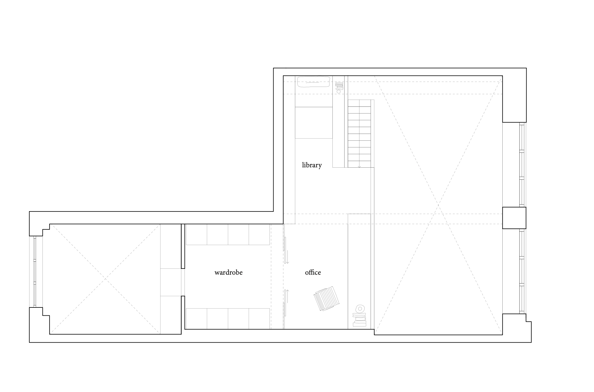
New concept and interior design for a stunning Stockholm’s apartment in an old piano factory from 1917 with five-meter ceilings and industrial windows. A new layout aimed to replan functions designing a large closet and an extra loft bedroom. Contemporary materials such as aluminum sliding doors for the closet were paired with classical oak cabinetry. The apartment design was inspired by the client Persian heritage blending mediterranean warmth with clean Scandinavian lines and included elegant dark green elements, terracotta, and velvet details.
New concept and interior design for a stunning Stockholm’s apartment in an old piano factory from 1917 with five-meter ceilings and industrial windows. A new layout aimed to replan functions designing a large closet and an extra loft bedroom. Contemporary materials such as aluminum sliding doors for the closet were paired with classical oak cabinetry. The apartment design was inspired by the client Persian heritage blending mediterranean warmth with clean Scandinavian lines and included elegant dark green elements, terracotta, and velvet details.





