SKELLEFTEÅ STUDENT HOUSING
![]()

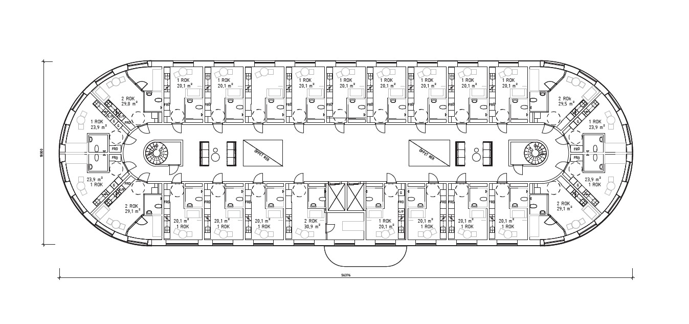
These three modular wood buildings of 3700m2 are designed to host around 90 student apartments and 25 teachers apartments. The facade divided in three ribbons that mark the floor height is cladded in colored corrugated metal. The last floor is set back and allows for privat terraces. This project was developed at Sandellsandberg.


